Our Residential Listings
15925 SE 101ST CIRCLESUMMERFIELD, FL 34491
Due to the health concerns created by Coronavirus we are offering personal 1-1 online video walkthough tours where possible.




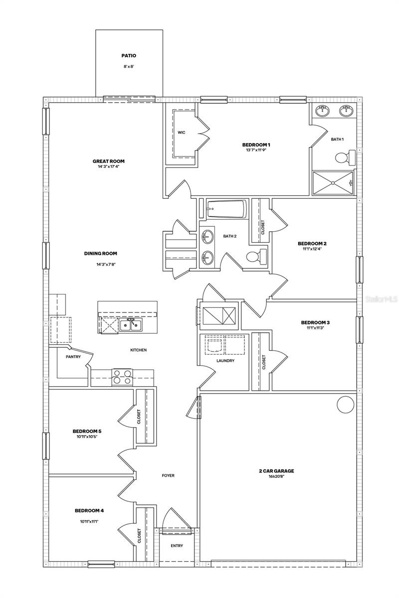
Under Construction. This single-story all concrete block constructed 5 bedroom, 2 bathroom home is a thoughtfully-designed living space. With an open concept layout, this plan offers the perfect balance of functionality, comfort, and modern style. The kitchen is centrally located with quartz countertops, center island, walk-in pantry and stainless steel appliances including a built-in dishwasher, range and microwave. The primary suite is at the rear of the home for added privacy and includes a spacious closet and ensuite bathroom. Four additional bedrooms share the second bathroom with a dedicated laundry room nearby. Pictures, photographs, colors, features, and sizes are for illustration purposes only and will vary from the homes as built. Home and community information including pricing, included features, terms, availability and amenities are subjext to change and prior sale at any time without notice or obligation. CRC057592.
| 3 hours ago | Listing updated with changes from the MLS® | |
| 5 hours ago | Listing first seen on site |
Listing information is provided by Participants of the Stellar MLS. IDX information is provided exclusively for personal, non-commercial use, and may not be used for any purpose other than to identify prospective properties consumers may be interested in purchasing. Information is deemed reliable but not guaranteed. Properties displayed may be listed or sold by various participants in the MLS Copyright 2026, Stellar MLS.
Last checked: 2026-02-25 05:26 PM EST
Did you know? You can invite friends and family to your search. They can join your search, rate and discuss listings with you.