Our Residential Listings
9125 SW 28TH TERRACEOCALA, FL 34476
Due to the health concerns created by Coronavirus we are offering personal 1-1 online video walkthough tours where possible.




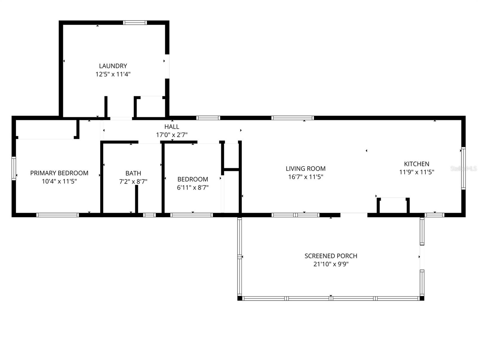
Affordable living or a great investment opportunity in Ocala. This 2-bedroom, 1-bath 1975 single-wide mobile home offers a functional layout with 867 sq ft of interior space, which includes a 195 sq ft utility/laundry room that provides valuable additional storage and workspace. The interior features a comfortable living room that opens to the kitchen, two bedrooms, and a centrally located bathroom. The large utility room off the hallway is ideal for laundry, storage, or hobby use. Outdoor living is a highlight with an expansive screened porch (21'10" x 9'9"), perfect for relaxing or extending your usable space. The property also includes a shed, offering extra storage for tools, equipment, or personal items. The yard provides plenty of room for parking, gardening, or future projects. This home is well-suited for investors or buyers seeking an affordable property in a convenient Ocala location.
| 20 hours ago | Listing updated with changes from the MLS® | |
| 3 days ago | Listing first seen on site |
Listing information is provided by Participants of the Stellar MLS. IDX information is provided exclusively for personal, non-commercial use, and may not be used for any purpose other than to identify prospective properties consumers may be interested in purchasing. Information is deemed reliable but not guaranteed. Properties displayed may be listed or sold by various participants in the MLS Copyright 2025, Stellar MLS.
Last checked: 2025-11-25 04:34 AM EST
Did you know? You can invite friends and family to your search. They can join your search, rate and discuss listings with you.