Our Residential Listings
17789 SE 113TH TERRACESUMMERFIELD, FL 34491
Due to the health concerns created by Coronavirus we are offering personal 1-1 online video walkthough tours where possible.




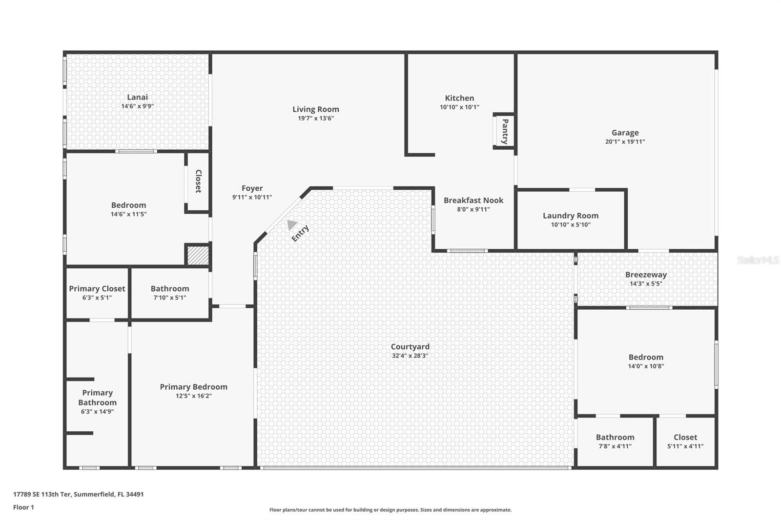
FLORIDA RESORT LIVING UNDER $300K – PRIVATE COURTYARD VILLA WITH GUEST HOUSE IN STONECREST Live the lifestyle others vacation for. Whether you're retired or working from home, this is your opportunity to enjoy year-round sunshine, tax advantages, and an active, resort-style environment—without the high price tag. Located in the gated 55+ golf community of Stonecrest, this refreshed courtyard villa offers the perfect blend of privacy, flexibility, and low-maintenance living. Cruise by golf cart to shopping, dining, and daily conveniences while enjoying access to pools, fitness center, clubhouse, golf, pickleball, and a full calendar of social activities. Designed for both comfort and versatility, the property features solid concrete block/stucco construction, a screened private courtyard ideal for entertaining, and a 1.5-car garage. The main residence includes: • 2 bedrooms, 2 baths • Light-filled Florida room • Open, functional layout The private guest house offers: • Studio-style living • Full bath • Spacious walk-in closet Perfect for visitors, hobbies, or a quiet home office. Recent updates include granite countertops, newer luxury vinyl plank flooring, and ADT security with cameras. Roof replaced in 2019. The HOA covers full landscape maintenance ($288/month), giving you true lock-and-leave convenience. Priced to allow for your personal touches, this is a rare opportunity to create your ideal Florida retreat while stepping into a vibrant, amenity-rich community from day one.
| 34 minutes ago | Listing updated with changes from the MLS® | |
| 2 hours ago | Listing first seen on site |
Listing information is provided by Participants of the Stellar MLS. IDX information is provided exclusively for personal, non-commercial use, and may not be used for any purpose other than to identify prospective properties consumers may be interested in purchasing. Information is deemed reliable but not guaranteed. Properties displayed may be listed or sold by various participants in the MLS Copyright 2026, Stellar MLS.
Last checked: 2026-04-30 09:30 AM EDT